Kitchen

Diamond Homes Center
At Diamond Homes Center, nestled in the heart of East Palatka, Florida, we are dedicated to transforming your dreams of homeownership into reality. As a premier manufactured home dealer, we specialize in offering top-quality homes from industry-leading brands such as Champion Homes, Scotbilt Homes and Live Oak Homes.
Enter your address or APN to check if this home fits on your property
Enter your property street address or APN
Interior
Bathroom
Construction
Exterior
Dealer License #:
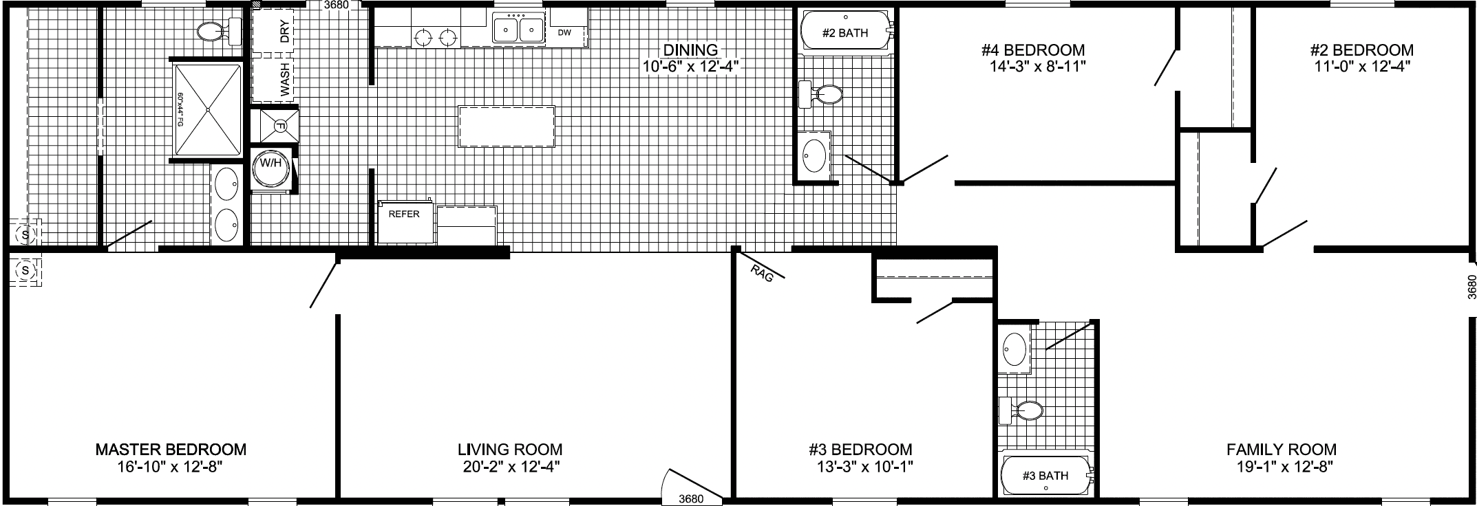
Images of homes are solely for illustrative purposes and should not be relied upon. Images may not accurately represent the actual condition of a home as constructed, and may contain options which are not standard on all homes.
2 Bed | 2 Bath | 728 Sq. Ft. | 14' x 56'
3 Bed | 2 Bath | 858 Sq. Ft. | 14' x 70'
2 Bed | 2 Bath | 979 Sq. Ft. | 16' x 70'